K3 di ruang terbatas. Program memasuki ruang tebatastertutup work permit system6.
Pt Sistem Manajemen Utama Paket Formulir Kosong Blank Form
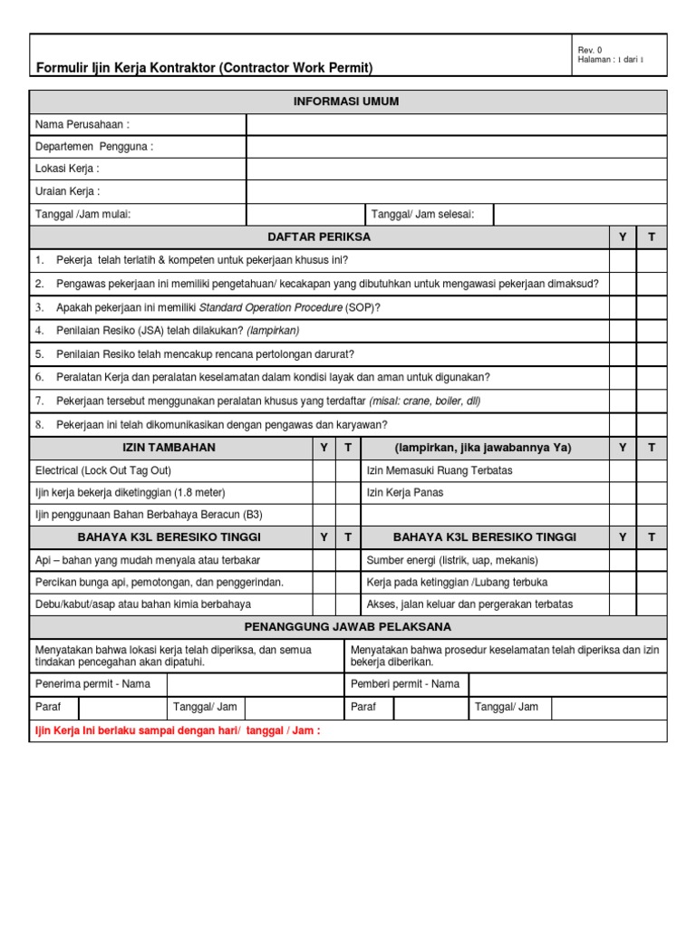
Contoh form work permit. Pengenalan karateristik bahan kimia berbahaya di ruang terbatas. Wpcm 001 3 work permit application form for a foreign workertrainee in non domestic sector 2 a please tick here if this is a work permit application for a performing artiste public entertainment licensees. B please fill in the companys cpf submission no. Ijin kerja panas hot work permit adalah ijin kerja untuk pekerjaan yang menghasilkan api atau menggunakan api dimana lokasi pekerjaan tersebut berdekatan dengan bahan yang mudah terbakar. Melalui work permit yang ada subkontraktor akan tahu dan mampu mengarahkan pekerjanya pada langkah kerja yang seharusnya. Download these free digital templates to improve safety in your workplace.
Precautions against heat pekerjaan welding pangelasan melibatkan logam yang mencair yang membutuhkan temperatur yang sangat tinggi. Contoh job safety analysis pengelasanada banyak orang di sekitar harus bekerja menjadi tirai pengelasan. Permit to work permit number part a. Use iauditor to control hazardous work and streamline ptw systems. Scribd is the worlds largest social reading and publishing site. Permit to work templates for authorizing personnel and permit initiators.
A permit to work cannot be valid for more than 12 hours or for more than the normal work shift. Permit validity permit validity is the time period specified on the permit to work for which the permit is valid. Ijin kerja pekerjaan dingin contoh contoh pekerjaan dingin antara lain pekerja bawah tanah dan gudang penyimpanan pada suhu dingin. 1 general permit to work template 2 confined space 3 hot work 4 cold work 5 maintenance permit to work templates. The following processes are to be suspended during the course of the work 2. To be implemented prior to commencement of work.
Prosedur ijin kerja di ruang terbatas. Contoh form work permit untuk melakukan pekerjaan. Izin kerja diperlukan khusus untuk pekerjaan non rutin yang mengandung bahayaresiko k3 tinggi. Tujuan dari izin kerja ialah untuk memantau seluruh potensi bahaya dari areasituasiaktivitas operasional di tempat kerja serta untuk memastikan segala areasituasiaktivitas pekerjaan berbahayaberesiko tinggi sudah terdapat pengendalian sehingga aman untuk dilangsungkan perkerjaan bersangkutan. Whichever is the least time. I13 tipe ijin kerja ada berbagai macam tipe work permit antara lain.
Work request location of work buildingroom contact name and phone number summary of work to be done part b. Beberapa contoh dari pekerjaan yang harus dibuat ijin kerja permit to work sebagai berikut.
















